Aller au contenu principal
Réf. : VT274-50048
Dernière mise à jour de l’annonce : 31/03/2026

Vente

47 970 € (Honoraires de négociation inclus)
45 000 € (Prix net vendeur)
Montant des honoraires : 2 970 €
Pourcentage des honoraires : 7 %
Honoraires à la charge de l'acquéreur
50340 Benoîtville
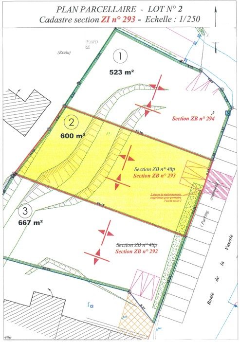
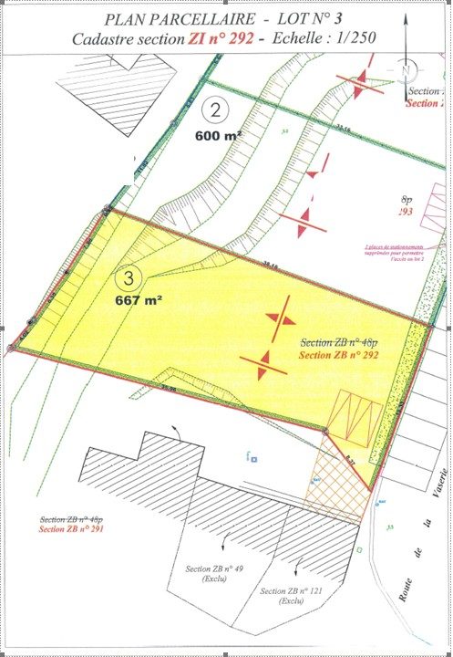
Dans le bourg de BENOISTVILLE, 3 terrains à bâtir viabilisés : - lot 1 : 523 m² - 45.000 € net vendeur - VENDU - lot 2 : 600 m² - 47.000 € net vendeur - lot 3 : 667 m² - 49.000 € net vendeur Assainissement individuel Les informations sur les risques auxquels ce bien est exposé sont disponibles sur le site Géorisques : georisques.gouv.fr

Conditions de vente

Prix HNI :  47 970 €
(honoraires de négociation inclus)
Prix net vendeur :  45 000 €
Honoraires :  2 970 € (Montant des honoraires de négociation)
Pourcentage d'honoraires :  7 %
Frais d’acte :  5 000 €
Type d'honoraires :  À la charge de l'acquéreur

Contact

Office :  OFFICE DES CAPS
Négociateur : Guillaume LE COUTOUR
Téléphone : 06 12 04 42 79
Adresse : 33 Route de Flamanville
Code postal :  50340
Ville :  LES PIEUX