Aller au contenu principal
Réf. : VP177-14097
Dernière mise à jour de l’annonce : 11/02/2026

Vente

81 000 € (honoraires de négociation inclus)
Honoraires à la charge du vendeur
14100 Lisieux
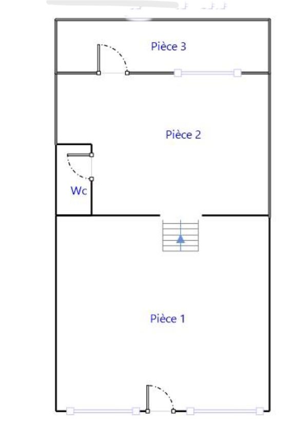
LISIEUX - Murs d'un local commercial libre en plein centre ville d'environ 66m2 comprenant : Une surface de vente carrelée d'environ 36 m2 avec une mezzanine d'environ 19m2, un WC avec lave mains et une réserve. Anciennement loué 610€ TTC (en sus 40€ de provisions pour taxe sur les ordures ménagères et charges de copropriété) Charges trimestrielles de 318€. Nombre de lots: 201 dont 89 en habitation, bureaux ou commerce. Nous aimons ses volumes et sa situation. Les informations sur les risques auxquels ce bien est exposé sont disponibles sur le site Géorisques : georisques.gouv.fr

Bilan énergétique

Bilan énergétique non renseigné.

Équipements

Accès handicapé : Oui

Conditions de vente

Prix HNI :  81 000 €
(honoraires de négociation inclus)
Type d'honoraires :  À la charge du vendeur

Contact

Adresse : 42 Rue Hamelin
Code postal :  14130
Ville :  PONT L EVEQUE